SeaLock Centre (formerly Beancross & Newlands) Montgomery Street, Grangemouth. FK3 8QR
Centre Car Park at rear of building
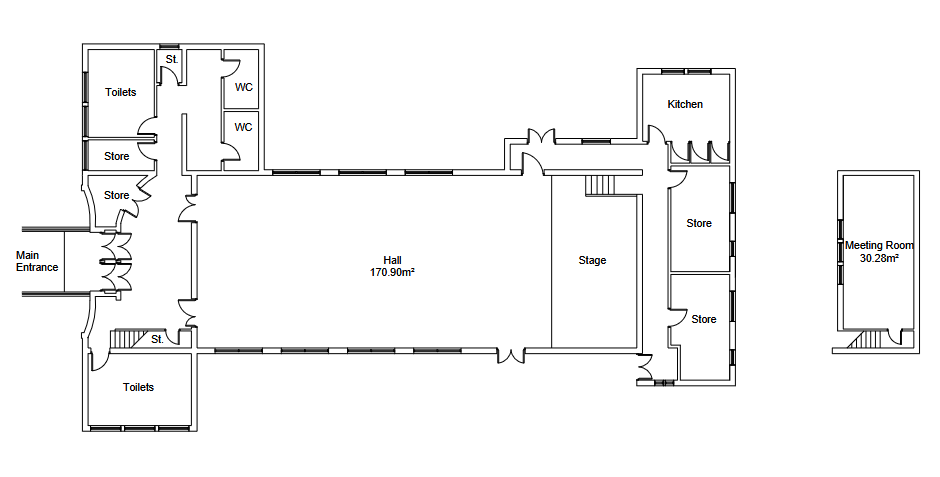
Centre Floor Plan

SeaLock Centre (formerly Beancross & Newlands) Montgomery Street, Grangemouth. FK3 8QR
Centre Car Park at rear of building
Centre Floor Plan


This site uses cookies to ensure the best experience. By continuing to use this website, you agree to their use.